|
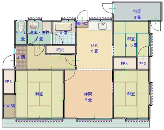
売居住用(中古戸建) 物件番号 石岡11 |
茨城県石岡市茨城2丁目 |
|
|
|||||||||||||||||||||||||||||||||||||||||||||||||||||||||||||||||
|
||||||||||||||||||||||||||||||||||||||||||||||||||||||||||||||||||||
|
茨城県知事免許(6)第5578号 誠 和 不 動 産 〒309−1715 茨城県笠間市湯崎1244−5 |
◆物件のお問合せ等は・・・ TEL 0296−70−5156 FAX 70−5162 E−メール seiwa-ks@mtf.biglobe.ne.jp ホームページ http://seiwa.f.mepage.jp/ |
担当者 鈴木 和徳(宅地建物取引士・宅建マイスター・ 上級定期借地プランナー) 茨城県知事登録 第9118号 携帯番号 090−4669−3829 |
||||||||||||||||||||||||||||||||||||||||||||||||||||||||||||||||||