売居住用(中古戸建)

物件番号 石岡11

茨城県石岡市茨城2丁目

価  格

現況お引渡し 400万円

 

 

 

 

所在地

茨城県石岡市茨城2丁目

交 通

JR常磐線「石岡駅」より約2.1q

土 地

宅地 245.54u(約74.27坪)

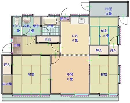
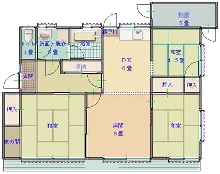
建 物

居宅 69.56u(約21.04坪)

木造スレート葺1階建(4DK)、’77年8月建築

都市計画

市街化区域(第1種中高層住居専用地域)

ぺい

60%

容積率

200%

設 備

公営上水道、公共下水道、電気、集中プロパンガス。洋式水洗トイレ、庭・物置・駐車場1台。

備 考

ばらき台幼稚園へ約0.3q、南小学校へ約0.9q、石岡中学校へ約2.2q、FOOD OFFストッカー石岡東店へ約2.4q、山王台病院へ約2.1q、石岡市役所へ約2.6q、石岡郵便局・石岡警察署へ約2.3q、消防本部へ約2q、中央図書館へ約2.9q。空家バンク登録物件(空き家’20年頃より)。

権 利

所有権

取引形態

仲介

 

 

【1F:69.56u】

画像ページを表示できます。

   

 

   

※写真・図面等と現況が異なる場合、現況を優先とします。

 茨城県知事免許(6)第5578号

 誠 和 不 動 産

 〒309−1715 茨城県笠間市湯崎1244−5

◆物件のお問合せ等は・・・

TEL 0296−70−5156 FAX 70−5162

E−メール  seiwa-ks@mtf.biglobe.ne.jp

ホームページ http://seiwa.f.mepage.jp/

担当者 鈴木 和徳(宅地建物取引士・宅建マイスター・

上級定期借地プランナー)

    茨城県知事登録 第9118号

    携帯番号 090−4669−3829